Antonio Martínez Hernández | CONCURSO DE VIVIENDA PÚBLICA EN ALICANTE
Estudio de arquitectura, urbanismo y diseño interior en Villena. Calle Bodegas nº2.
Antonio Martínez Hernández
21421
portfolio_page-template-default,single,single-portfolio_page,postid-21421,theme-hazel,woocommerce-no-js,ajax_fade,page_not_loaded,,vertical_menu_transparency,vertical_menu_transparency_on,content_with_no_min_height,select-theme-ver-3.7.1,wpb-js-composer js-comp-ver-5.4.5,vc_responsive

CONCURSO DE VIVIENDA PÚBLICA EN ALICANTE

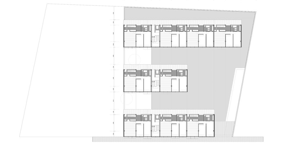
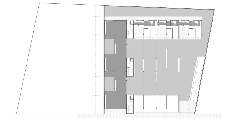
Concurso de vivienda social organizado por el Instituto Valenciano de la Vivienda. San Juan (Alicante).

40 viviendas y 40 plazas de aparcamiento.

 

Arquitecto director: Antonio Martínez Hernández

Superficie intervenida: 6.722 m2

Presupuesto: 2.720.213 euros

Año: 2009

Concurso

Category

vivienda colectiva