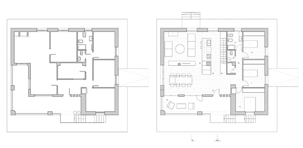
Rehabilitación de vivienda unifamiliar en Villena.
Arquitecto director: Antonio Martínez Hernández
Superficie intervenida: 180,00 m2
Presupuesto: 50.000 euros
Año: 2018
En construcción
vivienda privada