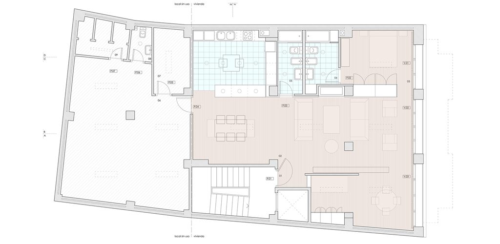
Transformación de entresuelo comercial en vivienda en Villena (Alicante).
Arquitecto director: Antonio Martínez Hernández
Superficie intervenida: 196,98 m2
Presupuesto: 30.765 euros
Año: 2014
vivienda privada